Ritchie Studio

Search icon

King Solomon Academy

King Solomon Academy: Classroom 02Charity ARK Schools invited Ian Ritchie Architects to design one of a network of inner city schools that it is realising under the Government’s Academy Programme.

The initial commission was a Feasibility Study of two sites; one for an infant school, the other for expanding a secondary school; and a further Feasibility Study of combining both schools on the secondary school site.

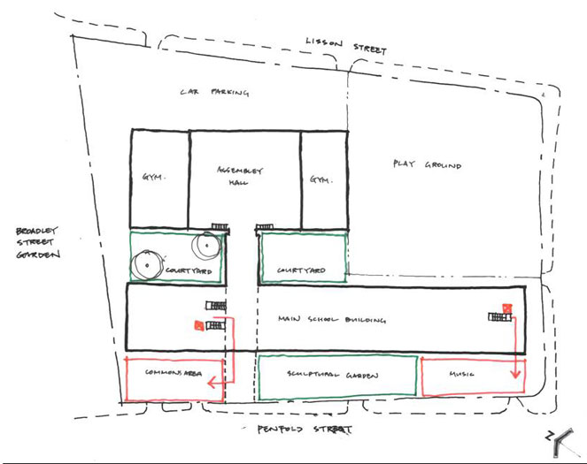
The Academy provides education for 900 children in the City of Westminster, specialising in Music and Mathematics. The Academy operates an extended school policy engaging with the local community. The ARK education philosophy includes the notion of autonomous “schools within schools”, each with their own identity and dedicated facilities. The Academy is to be divided into 4 class age groups: the reception and primary school children of ages 3 to 7 years (infants) and three class age groups of 8 to 18 years.

The secondary school works included the full refurbishment and minor spatial adaptation of the existing Grade II* secondary school completed in 1960. This original school was designed by Leonard Manasseh and is an exemplary, bold and well considered example of secondary schools in Britain. The two new buildings provide adaptable teaching spaces for the new primary school, specialist music and drama rooms, and a dedicated sports facility. The folded zinc and aluminium cladding of the new buildings respond to the proportions and rhythm of the existing building.

The project was completed in November 2009.

King Solomon Academy

London, UK

Get directions